Сканирование и моделирование общественного здания в Московской Области

  • Выполняем заказы от 1 дня
  • Работаем с компаниями и физлицами
  • Собственное производство
  • Оказываем услуги по всему миру

Поздравляем с наступающим Новым 2026 годом!

подробнее

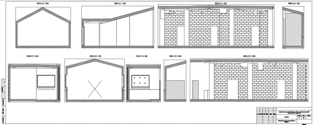
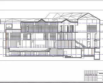
Задача

Методом наземного лазерного 3D‑сканирования произвести обмеры интерьеров четырехэтажного здания для дальнейшего выполнения отделочных и декоративных работ.

Решение

На основании выполненной съёмки была создана BIM‑модель объекта, сформирован комплект обмерных чертежей.

Есть похожая задача?

Отправьте нам детали вашего проекта любым удобным способом:

  • 1 этап

    3D‑сканирование

    3D‑сканер:

    Faro Focus S150

    Результат 3D‑сканирования:

    Облако точек с панорамами

    Точность cканера:

    2 мм

    Время сканирования:

    4 рабочих дня

    Формат файла:

    *.RCP

  • 2 этап

    BIM‑моделирование

    Используемое ПО:

    Autodesk Revit v.2022

    Время работы:

    15 рабочих дней

    Результат работы:

    BIM-модель

    Уровень детализации модели:

    LOD 300

    Формат файла:

    *.RVT

Готовы обсудить все ваши вопросы!

Заполните форму или позвоните по номеру +7 (495) 223 01 21

Заказать звонок